United Statesからアクセスされていますが、言語設定をEnglishに切り替えますか?
Switch to English site

DesignSpark PCB: 新バージョン 13 - 発売開始

Skip to main content

Mindful Droid | 排ガスや大気汚染を可視化しよう ~パート1~

by toshoco

Mindful Droid(マインドフルドロイド)を製作する背景には、ドライバーの運転を改善し、排気ガスの削減を目指すことで、より注意深く、理性的なドライバーになってもらいたいという思いがありました。

徹底的に調査を行った結果、このデバイスの実用性の問題と、学校の送迎ラッシュ中などにドライバーの気を引いてしまうような、運転中の潜在的な危険要素があるという問題に気がつきました。今回は、変化もたらすことが可能な、安全で、なおかつ情報を提供するデバイスを作ることが狙いで、私が重視したのは学校と通学経路周辺です。

こういったことから、私は幅広く、より安全な観点からこの問題に向き合うことができました。

大気汚染が原因で命を落とした、女学生のエラ・キッシ(Ella Kissi)の事例(記事)について考え、アンケートを行い、保護者がどの程度大気汚染について関心を持っているのか調べました。

この目的は、アンケート結果を参考にMindful Droidの完成形や、今後とるべき行動についてのインスピレーションを膨らませることでした。

アンケートからわかったことは、大気汚染レベルを意識している保護者はあまりおらず、考えたことすらない保護者もいるということでした。保護者は自分たちが普段吸っている空気に何が起こっているのか自覚しておらず、まったくもって関心がないようでした。今回のアンケートは、私の息子の学校で実施したものです。

Air Pollution Survey

大気汚染に関する詳細な情報と教育が不足している点は、大きな問題であると言えます。私自身の体験とアンケートの回答から、変化を起こすきっかけとなるべきCOP26や、活動家のデモのような全国的なイベントに頼るよりもむしろ、各々の注意を引くために、こういった問題をより目で見ることができ、なおかつ包括的な問題として扱うことになるような行動が必要であると感じました。

また、社会的な格差を考えると、必ずしもこの問題がすべての人に当てはまらないという意見もあるでしょう。ただ、誰もがデータにアクセス可能であるべきで、大気汚染の影響と、それぞれの問題に応じた取り組み方を理解することも大切です。

大気汚染は、ぜんそくや呼吸器系疾患を抱える人だけに影響するものではなく、その上長期的な影響を及ぼすものであり、私たちもこの問題について考えるべきです。

Survey - does knowing these levels matter to you?

アンケート結果からMindful Droidは、大気汚染に対する意識を高め、学校周辺や通学経路周辺の大気汚染の現状を伝えるために、視覚的に情報を提供し、教育を行うことができるようなデバイスにしたいと考えています。このデバイスは、何かしらの行動を強要するといったものではなく、排気ガスの影響とその低減のための行動について、さりげないリマインダーを継続的にかけてくれるものです。心理的には、情報を自然と吸収し、環境に良い影響を与えるような行動を起こすための助けとなるでしょう。

Mindful Droidは大気汚染に対してただ反応するようなものではなく、もっと積極的なものです。情報を繰り返し提供すれば、潜在意識的に頭の中でその情報を取り込むようになります。

学校周辺での問題

学校周辺の汚染原因の大半を占めている車の排気ガスは、密度が高く、1m未満の高さに溜まる傾向があることが明らかになりました。この高さはちょうど6~11歳の平均的な身長です。この「1m未満スモッグ問題」は、犬や猫のような動物たちにも影響を与えるため、直接的に感情に訴えかけられるような問題でもあります。ホームレスの人々も、交通量の多い都市や町の街路で寝ていたら、この高さで生活していることになります。

Pollution around schools

送迎ピーク時、学校周辺の交通渋滞

本プロジェクトの焦点

Mindful Droidの設計面で重要視する点としては、次世代(子どもたち)のために声をあげ、現在、世界の運転席に座っている保護者や、他の大人たちに自覚させることで、良い変化を促すことです。
Mindful Droidは、通学時の子どもたちの間で、現状を変えるために積極的に行動するといった考え方を推進していくような、受動的な方法でもあります。大気汚染による影響を視覚的に認識し、どのように対策をとるべきか、意識する助けとなるでしょう。

私たちはMindful Droidを、子どもたちの命を救うための仲間とみなすことができます。

Mindful Droidで重要な領域は、以下の通りです。

  1. 空気の状態を監視し、ハードウェアやソフトウェア、オープンデータの作成を行う。Dyson Backpackとは異なり、データはプライベートなものとして扱う。リアルタイムの空気状態データAPIとして通信可能。
  2. 情報と教育 | 情報を可視化することで、例えば、アイドリングせずにエンジンを切ったり、学校の近くまで運転しないようにしたり、学校まで歩きや自転車を使ったりと、運転手の行動による環境改善への貢献を目指す。
  3. 行動を起こす | 学校や議会当局に警告することで、学校周辺での交通巡視員の配備を可能にする。交通渋滞の解消や、空気の状態から得られたデータに基づいて、自動車乗り入れ禁止区域を効果的に配置する。
  4. 継続的に、同時に起こる様々な大気汚染の変化指標を、明確で、理解しやすい方法で示す。
  5. 見ているだけで楽しいようなインタラクティブな方法で子どもと保護者の注意を引き、大気汚染レベルに対する想像力をかき立てる。

プロトタイプ

Designing Mindful Droid Prototype

Mindful Droid - Prototype Stage

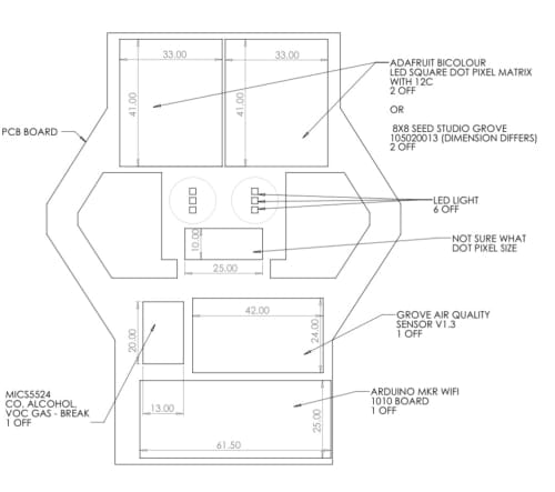
プリント基板の概念設計

PCB Design Stage - Layout

PCB Design

PCB Design Stage Conception

この後、設計、製作過程と材料の選択についての詳細説明が続きます。

このプロジェクトのパート2で、私がどのようにしてMindful Droidに命を吹き込んだのか、ぜひご覧ください。

Michael is an Industrial Design Engineer, Maker and winner of the Young Innovators Award 2021, with over 9 years experience working in various industry sectors. Having a problem solving background, he is always enthusiastic about finding solutions to problems that challenge everyday living. His key focus points are inclusivity, functionality with consciousness, and sustainability.
DesignSpark Logo

DesignSparkアカウントを作成しませんか?

アカウントを作成すると、高機能な基板CADや使いやすい3次元CADが無料で使えるだけでなく、数千万点超の部品のCADライブラリやフットプリントや3Dモデルを検索しダウンロードできます。
アカウントを作成

アカウント作成済みの方はこちらからログイン

コメント